聲屏障,隔音屏,隔音墻,專業生產隔聲屏障-安平喆奧聲屏障
二維碼

咨詢熱線:

183-3082-6666
聲屏障圖紙
您的位置:喆奧聲屏障 > 聲屏障圖紙 > 陜西省省級高速公路聲屏障圖紙

陜西省省級高速公路聲屏障圖紙

最后更新時間:2026/4/30 7:04:07   作者:   已經有777個人瀏覽并咨詢。
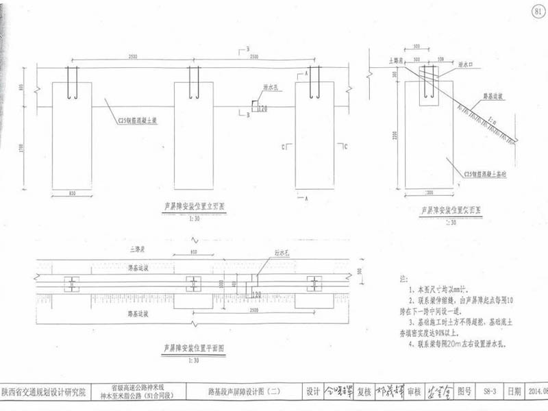
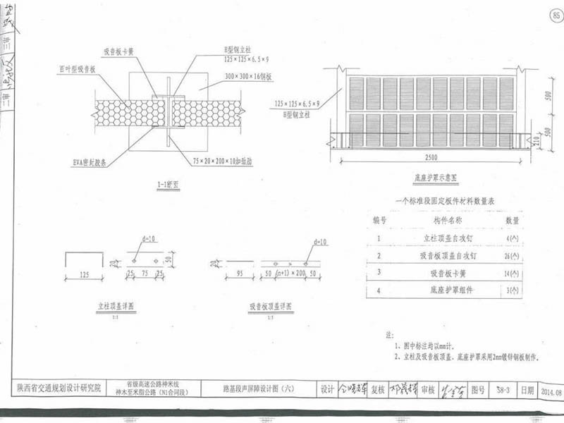
聲屏障圖紙
聲屏障圖紙
聲屏障圖紙
聲屏障圖紙
聲屏障圖紙
聲屏障圖紙
聲屏障圖紙
聲屏障圖紙

城市道路聲屏障

高速隔音墻

微孔吸音板

與陜西省省級高速公路聲屏障圖紙相關的文章

聲屏障施工環境保護

聲屏障施工環境保護聲屏障施工注意事項,施工人員必須配戴安全帽,不是工作人員或穿拖鞋者不得隨便入內,以保施工人員的安全。施工過程中都要聽從指揮,各崗位都嚴格的做好自己的工作,守好自己的崗位。只要做到這些,聲屏障的施工安全也就基本保障了,聲屏障施…

高鐵聲屏障路基段和橋梁段介紹及其組成

高鐵聲屏障路基段和橋梁段介紹及其組成1. 路基地段聲屏障采用通環(2009) 8325“時速350km/h客運專線鐵路路基插板 式金屬聲屏障”通用參考圖。屏障上部結構 采用H型鋼插板,直立結構形式,高度采用 2950mm(即軌面以上2050mm),屏障采 用鋁合金復合吸聲…

聲屏障為人們帶來和諧安寧的環境

聲屏障為人們帶來和諧安寧的環境聲屏障的降噪量與噪聲的頻率、噪音的分貝大小、屏體的高度及噪音源與接收點之間的距離等多種因素相關。聲屏障的減噪高頻聲比中頻聲的減噪效果要好,但對于25Hz左右的低頻聲。由于聲波的波長較長很容易從屏障的上方繞射過去,所以…

公路隔音屏障安裝之前需要質檢哪些項目?

公路隔音屏障安裝之前需要質檢哪些項目? 公路隔音屏障安裝之前需要按照國家相關的檢驗標準進行材料、強度、工藝等方面進行現場檢查。檢查隔音屏障安裝質量及外觀尺寸和效果,依照《公路工程質量檢驗評定標準》(JTG F80/1—2004)環境保護中隔音屏…

如非注明文章皆由專業的聲屏障廠家“喆奧聲屏障”原創,轉載請注明出處!
文章地址:http://m.shhyzsgc.com/spztz/105.html
繼續瀏覽與:公路 屏障 圖紙 相關的文章

上一篇:暫無信息

下一篇: 安徽立交橋聲屏障圖紙

質量保障

產品全部流水線生產
讓客戶,更放心

極速發貨

定制產品生產完成
24內快速發貨

增值稅專用發票

所有產品均可開具13%增
值專用發票

技術指導

使用產品過程中遇到問題
我廠全程指導

聲屏障